
Hotel Royal Nest
Hürth
Das geplante Hotel „Royal Nest“ entsteht im Entwicklungsgebiet Headquarters Hürth im Stadtteil Efferen. Das Quartier wird aus östlicher Richtung über die Kalscheurener Straße erschlossen. Die ÖPNV Erschließung erfolgt über die Bushaltestelle „Robert-Bosch-Straße“ am Vogelsanger Weg.
Das neue Hotelgebäude ist als kompakter, rechteckiger Baukörper, mit einem großzügigen Vordach geplant. Es wird entlang der Baugrenze Richtung Wolters-Kluwer Straße platziert, sodass es sich mit seinem Haupteingang Richtung Grünstreifen orientiert.
Dabei wird das Gebäude am zur Straßenseite vorderen Teil der Baugrenze platziert, sodass der hintere Bereich mit möglichst vielen Parkplätzen versehen werden kann, ohne die Anmutung eines Parkplatzes aufkommen zu lassen. Die seitliche Zufahrt ermöglicht eine Zuwegung mit dem PkW und dient gleichzeitig als Möglichkeit der Anlieferung für Küchenbereiche und das Housekeeping. Vom Parkplatz aus, kann das Gebäude durch einen großzügigien Zugang, zusätzlich zum Haupteingang, auch von der Rückseite erschlossen werden.
Das Hotel „Royal Nest“ ist als fünfgeschossiger Baukörper mit klar gegliederter senkrechter Fassadenstruktur konzipiert.
Das Konzept sieht zunächst einen Bauabschnitt mit insgesamt 44 Gästezimmern vor und wird im nördlichen Teil des Grundstücks platziert.
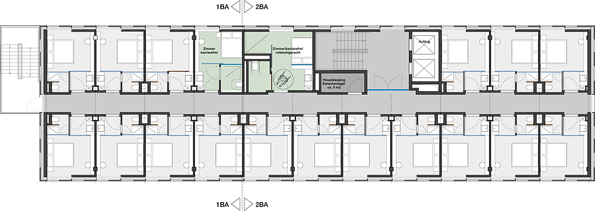
Die Zimmer gliedern sich über 4 Etagen jeweils an den Längsseiten des Gebäudes. Ein durchgehender Flur wird mit einer Aufweitung an den Zimmertüren versehen, die zum einen, einen Vorteil für die Barrierefreiheit (Wendemöglichkeiten/ Begegnungsflächen) bieten, zum anderen die Zugänge zu den Zimmern betonen und eine offene Geste erzeugen. Die Zimmer sind gleichmäßig rhythmisiert in Zweiergruppen angeordnet und verfügen jeweils über eine Grundfläche von unter 16 m². Durch die beidseitige Zimmeranordnung wird die Grundrissfläche optimal genutzt; alle Zimmer erhalten eine natürliche Belichtung und auch Belüftung über bodentiefe Fenster. Die klare innere Struktur ermöglicht eine modulare Bauweise, reduziert interne Verkehrsflächen und unterstützt sowohl den wirtschaftlichen Betrieb als auch spätere Erweiterungsmöglichkeiten im zweiten Bauabschnitt.
Standort:
Hürth
Jahr:
September 2025-Dezember 2025
BGF:
ca. 2.440 m² oberirdisch
Leistungsphasen:
Wettbewerb 3.Preis
Bauherr:
Patrick Schumm

Lobby

Lageplan

Grundriss EG


Regelgeschoß

Impressionen


Hotelzimmer

Hoteleingang


